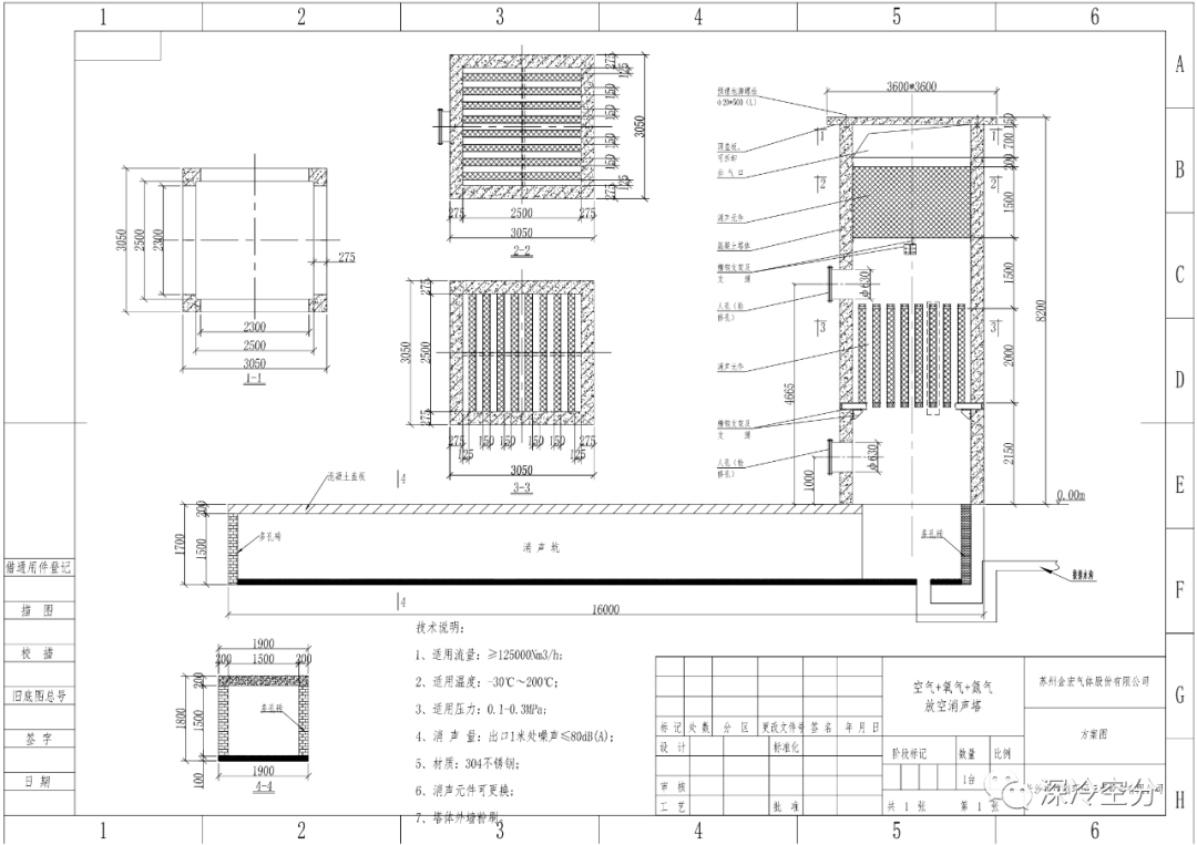
空分消音坑消音塔主要技术标准及内部图片
空分消音坑消音塔主要技术标准及内部图片
Zx18954618859
深冷空分,制氮制氧,空分运营,设备维护保养,技术交流,液氮液氧液氩及特气销售 ,人员招聘等
一、概述
空分设备在开车调试阶段,当气体纯度没有达到规定的纯度时, 需要排气
放空;在正常生产阶段有时因生产工艺要求也需放空气体,如分子筛纯化系统在
再生时有加温,吹冷的放空气体,空压机防喘振,超压时的排气放空,产品工艺
需要放空的气体,液体汽化喷射排放气体,也有用户气体过剩时排放气体等;在
空分设备停车阶段也有大量的空气,氧气和氮气等各股气体的排气放空。放空气
体产生噪声最大值可达到110-130dB(A),远超国家标准(≤85dB(A))。
二、设计规范
3.1《工业企业噪声控制设计规范》(
GB/T50087-2013);
3.2《噪声与振动控制工程技术导则》;
3.3《工业企业设计卫生标准》(
GBZ1-2010);
3.4《高压气体排放小孔消声器》HJ/T382-2007;
3.5《声学环境噪声测量方法》GB/T3222-94;
3.6《钢结构设计规范》(
GB50017-2003);
3.7《深度冷冻法生产氧气及相关气体安全技术规程》GB16912-2008;
3.8《绝热用玻璃棉及其制品》GB/T13350-2000;
3.9《管道消声器和风道末端单元的实验室测量方法 插入损失、气流噪声和全压
损失》 GB/T25516-2010/ISO 7235:2003;
3.10《通风消声器》HJ2523-2012;
3.11《石油化工噪声控制设计规范》SH/T 3146-2004
3.12《冷弯薄壁型钢结构技术规范》 GB50018-2002;
3.13《机械设计手册》第一册,第四册
3.14《金属材料手册》
3.15《金属机械加工工艺人员手册》
三、设计标准
1、经消声坑及消声塔降噪后,消声塔出口1米处噪声值≤80dB(A); 2
2、通道内流速≤15m/s;
3、设计使用年限20年;
4、气流再生噪声≤75dB(A)
五、消声原理 3
消声器是一种在允许气流通过的同时,又能有效地阻止或减弱声能向外传播
的装置。
1、阻性消声器是利用气流管道内的不同结构形式的多孔吸声材料吸收声能,从
而降低噪声。
2、抗性消声器是通过管道内声学特性的突变处将部分声波反射回声源方向,以
达到消声目的的消声器。
六、计算书
1.阻性片式消声器消声量性能计算如下:
ΔL=φ(α0)×2L/b
①
ΔL:消声量 dB(A);
α0:正入射吸声系数,取 0.9;
根据吸声系数,可查φ(α0)(取消声系数)为 1.2;
L:消声器的有效长度;
b:消声器片间距。
经计算,消声量为:56dB(
A),实际消声量约为 53dB(A)。
放空噪声最大值约为 120-130dB(A),出口处噪声约为:70-77dB(A),≤80dB(A)。
(满足工业企业噪声卫生标准 GBZ1-2010,≤85dB(A))
根据经验,500m 距离实际衰减噪声约 40-50dB(A),低频及高频有所不同,
因此根据《声环境质量标准》GB 3096-2008 标准中的二类标准(工业、居民混
杂区),经降噪治理后,居民敏感点昼间≤60dB(A),夜间≤50dB(A), 注:具体
以项目环评要求为准。
2、气流再生噪声计算
LWA=-5+60lgV+10lgS(±2)dB(
A)
②
其中:LWA——气流噪声 A 声功率级[dB(
A)];
V——片间流速(
m/s),最大约 11m/s;
S——消声器气流通道总面积,3.5m 2
经计算,气流再生噪声值:61-65dB(
A
3、消声器阻力损失计算:
③
计算依据:ΔP=ζ(ρV 2 /2)
式中:ΔP——阻力损失,Pa。
ρ——空气密度,取 1.29kg/m3。
V——消声器片间流速,11m/s。
ζ——阻力系数,取 0.9。
ΔP=70Pa
注明:消声元件设计总长为:3.5m(分为两段,一段 2m,1 一段 1.5m,为方便
安装及检修,两段消声元件间距≥1.0m,同时有利于降低气流噪声,提高消声量, 5
吸音材料采用不同的容重,容重低的有利于降低高频噪声,容重高的有利于降低
频噪声,做到全频段高消声量),消声量≥50dB(A)。由于放空塔有一定的高度
及噪声的传播方向向天空,传声损失约为 5-15 dB(A)(低频衰减较低,高频衰
减较高),总消声量约为 55-65 dB(A)。消声塔 1m 处≤80dB(A)。
七、噪声源分析
排气放空噪声也是工业生产中的一项重要的噪声源,它具有噪声强度大、
频谱宽、流速高等特点。排气放空噪声一般是由高速气流流动的不稳定性及排气
管道振动传声所产生,各频段(
63-8000HZ)噪声值均较大。
材料材质说明
消声元件内材质要求
9.1消声元件的框架材质为06Cr19Ni10,t≥2mm;吸声材料用隔板支撑,防止坍
塌,隔板厚度t≥2mm,间距≤500mm;
9.2护面多孔板材质为06Cr19Ni10,护面孔板(
t=1.0-1.5mm)。开孔率为20-25%。
吸声材料为防水、防腐型超细玻璃棉板,耐温≥300℃,容重≥48kg/m 3 (由于各
频率段噪声值都较大,需采用不同容重的吸声材料来降低各频率段噪声,低容重
的吸声棉降低高频噪声,高容重的吸声棉降低低频噪声),为防止吸声材料被吹
出,采用不锈钢丝网和玻璃纤维布双道保护吸声材料。
制作工艺要求及执行标准
工艺要求:
10.1塔内所有零部件去油除锈后,并彻底清除残留表面的细粉、磨料、灰尘或砂
珠,清洁度符合HTKA0907-2012二级要求,碳钢材料:表面涂改性环氧树脂底漆
(
P-4)2道,厚度120μm;
10.2本项目设计地下消声坑;
10.3消声元件框架与孔板复合采用焊接与铆钉连接相结合,铆钉应与基面点焊固
定,不得脱落脱铆。元件迎风侧采用连续焊接,焊接应平滑,焊接处处理干净后
补漆处理;
10.4框架焊接采用满焊,焊接高度不小于板厚;
10.5防护结构可靠安全,不允许丝网、玻璃纤维布有破洞、漏洞等缺陷存在,以
杜绝阻性材料等杂质飘落;
10.6产品铭牌及位号参数等;
10.7为使安装、检修、更换,操作方便,每块消声元件预埋两个螺帽,配套吊环,
消声元件固定方式为活动结构;
10.8消声元件迎风面采用圆弧型导风锥,以避免强涡流,能有效减小阻力损失;
10.9所有提供给业主、工程院的图纸、文件,体现
LOGO、
LOGO,项目名
称,文件编号,版本号等信息;
-
2023年血糖新标准公布,不是3.9-6.1,快来看看你的血糖正常吗? 2023-02-07
-
2023年各省最新电价一览!8省中午执行谷段电价! 2023-01-03
-
GB 55009-2021《燃气工程项目规范》(含条文说明),2022年1月1日起实施 2021-11-07
-
PPT导出高分辨率图片的四种方法 2022-09-22
-
2023年最新!国家电网27家省级电力公司负责人大盘点 2023-03-14
-
全国消防救援总队主官及简历(2023.2) 2023-02-10
-
盘点 l 中国石油大庆油田现任领导班子 2023-02-28
-
我们的前辈!历届全国工程勘察设计大师完整名单! 2022-11-18
-
关于某送变电公司“4·22”人身死亡事故的快报 2022-04-26
